Casa Domínguez

Alejandro de la Sota (1976)

Explorar Obra

Alejandro de la Sota

Lo que dio lugar a este proyecto fue la vida de la familia y sus necesidades. Don Alejandro se implicó encontrando y resolviendo el problema para conseguir la mejor relación posible entre el lugar y las personas que lo habitan.

Un Proyecto Personal

Durante todo el proceso de diseño estuvo presente la opinión y gustos de los propietarios, respondiendo de la forma más inteligente según los medios disponibles.

Filosofía de Diseño

De la Sota buscó crear una arquitectura que no se impusiera al entorno, sino que dialogara con él, estableciendo una relación única entre la familia, la casa y el paisaje gallego.

Dibujo acuarela - Casa Domínguez Casa Domínguez - Vista general

Filosofía y Concepto

La Casa Domínguez representa un manifiesto sobre la relación entre el hombre, la arquitectura y el medio natural.

La Cueva y el Palafito

Recuperando arquetipos olvidados, el proyecto materializa la idea de "el dormir enterrado y el vivir en alto".

Orden Geométrico

Partiendo de la premisa de que "la Naturaleza admite la geometría", la obra propone un tránsito: desde una base inferior irregular hacia una cima donde impera la simetría.

Diagrama sección - Cueva y palafito Diagrama evolución - Relación interior/exterior

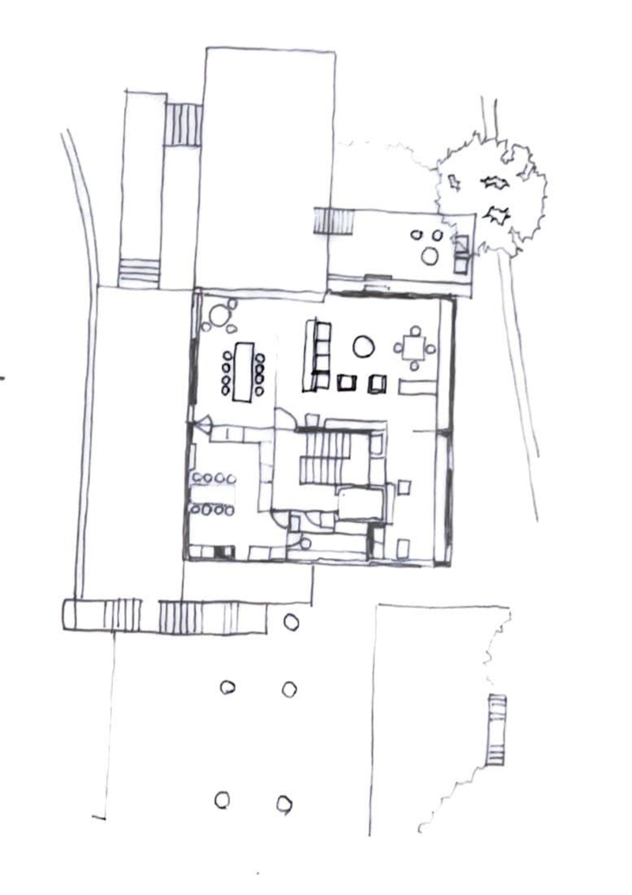
Estructuración

La vivienda destaca por su marcada estructuración horizontal, utilizando materiales opuestos para reforzar la función de cada estrato.

Alzado esquemático - Fachada Estructura elevada y vistas

Cotas Negativas: La Cueva

Espacios para el descanso construidos con fábricas pesadas de hormigón. Buscan el refugio y la conexión telúrica con la tierra.

Cotas Elevadas: El Árbol

Estructura ligera de metal y cristal. Revestida de planchas metálicas, permite mayor flexibilidad y se abre a la vida social.

Materiales

Cuando hablamos de materiales no solo analizamos la composición de paredes, suelos y ventanas, sino que buscamos todos los elementos causantes de que la casa sea esa y no otra.

La Luz como Material

En este proyecto, la luz condiciona todas las estancias, sin ausentarse en ninguna de las habitaciones. La cota negativa de la zona de noche no es obstáculo para el sol, que entra mediante claraboyas y ventanas bien posicionadas.

Dualidad de Materiales

Además de la oposición día/noche, se presenta dualidad entre materiales tradicionales e innovadores, reforzando el concepto de cueva y palafito.

Materiales Tradicionales

El hormigón de la zona inferior o la plaqueta de cerámica marrón en el sótano, que parece casi una prolongación de la tierra.

Nuevas Tecnologías

Las grandes planchas metálicas o de cristal que aligeran la parte superior, creando un contraste con la pesadez de la base.

Claraboyas - Entrada de luz Bloques de vidrio - Luz filtrada

El Ciclo de Saarinen

"El dormir enterrado... la cueva y el palafito". Adaptando las teorías de Eero Saarinen, se sale de lo tradicional a la hora de construir una vivienda para llevar el espacio más allá de la casa.

Separación Día y Noche

Con la utilización del sol, se separan las estancias del día y la noche, aunque manteniendo a la vez cierta conexión entre ambas zonas.

Camino de Afección

Existe un recorrido emocional desde una parte inferior irregular y arbitraria hasta la cima, donde prima el orden, la simetría y la libertad.

Planta - Distribución espacial Escalera interior - Ciclo Saarinen

1. El Descanso

Situado dentro de la tierra (la cueva). Espacio de intimidad y protección, conectado telúricamente con el suelo.

2. Relación Inmediata

Contacto directo con el medio al mismo nivel. La transición entre interior y exterior se difumina.

3. La Convivencia

El núcleo social de la vivienda, espacio de encuentro familiar donde prima la luz y la apertura.

4. Relación Lejana

La mirada hacia el medio natural lejano desde la altura privilegiada. Libertad y contemplación del paisaje.

Paisaje y Función

Integración Natural

La arquitectura no se impone, sino que convierte el terreno en una prolongación natural de los espacios de la casa.

Adaptación

Buscando soluciones renovadoras para una familia numerosa, alejándose de la tradición gallega convencional.

Integración con la vegetación Terraza y jardín